请选择地区
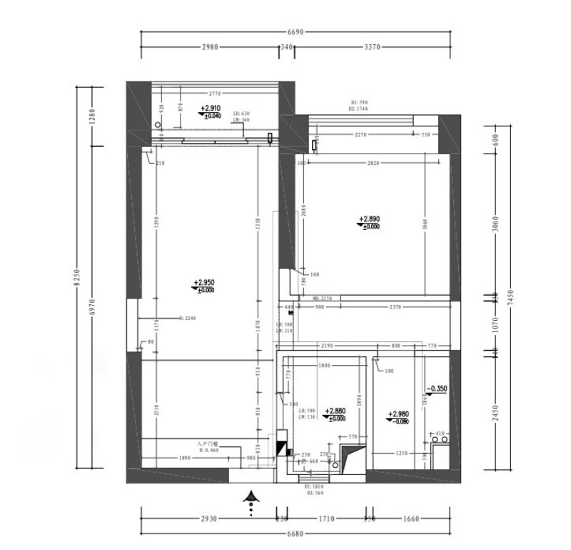
全屋户型图

玄关结合电视背景做整体收纳,使得空间更加整体 厨房,方案一为开放厨房,视野更加开阔,小户型也能拥有大客餐厅.
客厅

打破固定的功能区隔:传统的客厅、卧室、餐厅等功能区域被打破,采用开放式的设计模式来打破传统的隔断,使得整个居住空间的布局设计更为自由灵活。

客厅化设计注重生活方式的整体规划,家具的搭配、摆放位置、颜色、用具等都需要与整个生活方式相呼应,使得生活充满乐趣和舒适感。
卧室

主卧整体偏暖色,让人感觉到温馨又舒服,做了一个白色柜子来做空间的点缀,设计的柜子不仅要限度地发挥收纳功能,也要让柜子在空间整体上发挥一个兼具设计感和质感的作用。

两个卧室房间的彩色都偏暖色调,搭配一个特色的灯,提高房间品味的同时还能打造房间层次感.

小卧室需要提高空问利用率,设计具有强大收纳功能又能兼具学习、休息功能的榻榻米,生活品质的高低不是房子面积,而是合理规划空间带来的幸福感.
厨房

功能与设计共融:推拉门不仅为开放式厨房增添美感,更融入实用性。展开时,创造出一个独立用餐空间,为社交和用餐创造专属区域;合拢时,将厨房重新融入大空间,实现整体开放感.
卫生间

极简的设计风格是全球的流行趋势。这意味着,合理利用空间 自然色调和优质材料,多功能家具和电器限度的装饰.
推荐商品
-
- 半包装修三室两厅,定金100抵5000家电抵扣券
- ¥100.00
-
- 新中式半包装修三室,定金2000抵20000家电抵扣券
- ¥2000.00
-
- 全包装修三房两厅两卫,定金2500抵25000家电抵扣券
- ¥2500.00
-
- 全包装修奶油风两房,定金99抵1000灯具兑换券
- ¥99.00
-
- 一站式整装地中海混搭三房,定金199抵2000灯具兑换券
- ¥199.00




商品评价
100%好评
共有0人参与评分评价商品