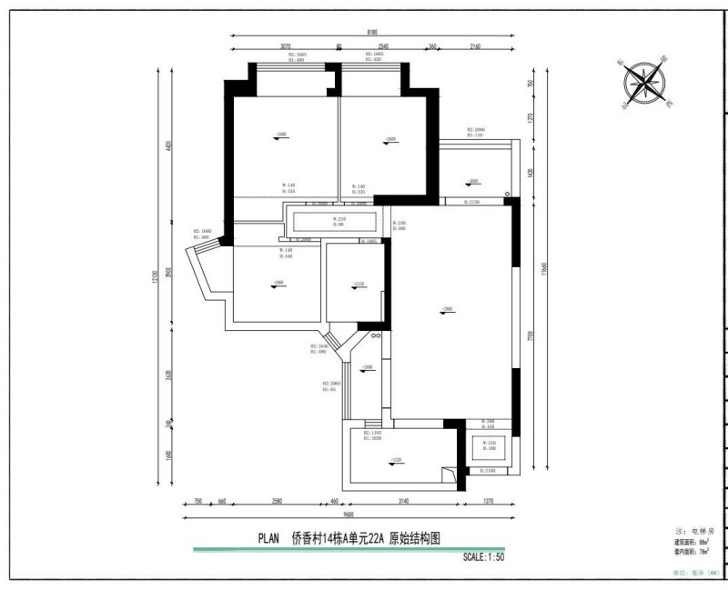
全屋户型图

装修风格:奶油原木风格 业主需求:是带有点奇葩户型,如何去改造设计让居住更舒适。 设计师设计理念:根据业主的需求及现场户型的查看,室内空间中有多处锐角及钝角空间,这在建筑及选择房屋时候是大忌,设计师通过对室内的空间进行设计,弱化角的存在,达到使用和调户型结构为主要的目的,同时在卧室的定制转角、洗手间的弧形转角,都是非常好的空间处理方法.
客厅

不做复杂造型,全屋简单硬装,直接刮大白,无吊顶设计只有一圈石膏线 客厅主灯选择的是美的吸顶灯,白色的外观颜值在线,跟我的原木风小家很搭,在餐厅搭配的是一个吊灯,呈现不同的效果

原木奶油风格追求自然和舒适的感觉,使空间中的每个人都能感受到和自然互动的感觉。这种风格将大量使用原木材料和淡色调,并注重使用现代和自然元素,形成一种温馨舒适的感觉

开放式布局,门洞串联功能区 无主灯+哑光瓷砖通铺 背景墙适当的留白处理.
卧室

主卧墙面刷白色油漆,简单明亮,地砖与客厅想通,主要以暖色系为主 窗帘颜色是选了淡黄的和主题比较搭

选的木床更符合原木风格.
厨房

打造一个极简的推拉门,不仅实用还有美观.

柜子用高光柜门好打理油腻腻的柜子,柜子一定要做到顶好收拾卫生,制定一个详细的收纳计划,将食材、碗盘、调料等物品放置得有序又方便取用。合理规划厨房空间,善用墙面、角落等,制作出巧妙的储物空间,避免杂乱无章的状况.
卫生间

卫生间也改造成了干湿分离的半墙卫生间,选用的是带镜前灯的镜柜款,带灯的话水电阶段要预留好线,镜柜更实用,用的门连窗,玻璃有一定的透光性,感觉亮堂些,选用长虹玻璃.

淋浴房做了灰色的大理石拉槽相比黑色大理石好打理 墙面是柔光砖 地砖是防滑砖,长虹玻璃隔断两不误,选智能马桶方便又省时.
阳台

阳台面积不大,打造封闭式通客厅,给阳台做了一个拱形门简单又符合主题.
推荐商品
-
- 半包装修诧寂风两房一厅,定金500抵5000瓷砖抵扣券
- ¥500.00
-
- 半包装修小户型精装,定金100抵1000家电抵扣券
- ¥100.00
-
- 全包装修小户型一室中性风,定金199抵2000瓷砖兑换券
- ¥199.00
-
- 全包装修四房户型,定金100抵2000家具兑换卷
- ¥100.00
-
- 一站式整装四室,定金888抵3500瓷砖兑换券
- ¥888.00




商品评价
100%好评
共有0人参与评分评价商品