请选择地区
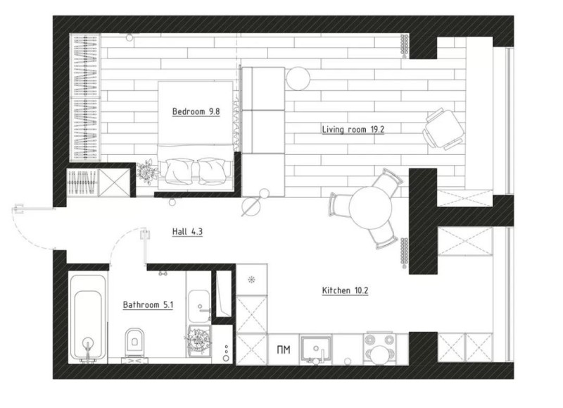
全屋户型图

北欧的生活哲学,来自于回归最纯粹的渴望,而在视觉表现上大多纯白简洁,让居者动静填满独特况味,而此案则以黑灰白、木质调彰显温和痕迹,同步衡量男性家庭成员较多,因此以蓝绿漆面、清水模涂料隐性带出刚毅气质
客厅

椭圆形穿衣镜、球形壁灯 整合在一起 经过镜面反射的灯光 让玄关看起来更加明亮

客厅灰色的沙发靠墙摆放 方正的形状也很有立体感 背景墙上的挂画有丰富的色彩 打破了沉闷的配色 使整个区域鲜活了不少

客厅没有安装电视 只留了一面白墙做投影的幕布 保证了基本娱乐 也不占用地面空间

餐厅旁边的一个小阳台 被打造成书房使用 在窗台下方布置一张长桌 侧面空间安装搁板 方便放置各种书架
卧室

卧室在客厅后方 因为布局的关系采光并不是很好 所以设计师利用长虹玻璃做隔断墙 将自然光引入室内

为了保证私密性 在卧室内部加了厚窗帘 睡觉时拉上 就是一个封闭式空间了

衣架的设计呼应了餐桌椅 蓝色的金属框架

下面是悬挂区,放大衣、外套正合适 上面可以放各种叠好的衣物
卫生间

卫生间很有设计感 墨绿色系的主色调带来一定的浪漫情调 半圆形的镜子配上灯光的渲染 在视觉上造成了前后落差 看起来层次分明

淋浴区和坐便区之间用玻璃做隔断 既有分离感 又不会显得太过压抑 顶部内嵌的灯带 也有效的拉升了层高
餐厅

开放式的厨房 选用浅灰色的橱柜做收纳空间 圆筒形油烟机与球形壁灯相呼应 整体看起来非常和谐

餐厅在厨房和客厅的中间区域 三把蓝色的餐椅围着同系列餐桌摆放 顶部还有一盏简洁造型的吊灯 既渲染了用餐氛围 又有一定的装饰效果

厨房的墙面选用方形瓷砖铺贴 做防溅板使用,方便清理
推荐商品
-
- 半包装修两室小户型,定金1000抵5000家电兑换卷
- ¥1000.00
-
- 全包装修法式复古三室,定金1000抵10000家电抵扣券
- ¥1000.00
-
- 全包装修美式古典一室小户型,定金100抵1000家电抵扣券
- ¥100.00




商品评价
100%好评
共有0人参与评分评价商品