请选择地区
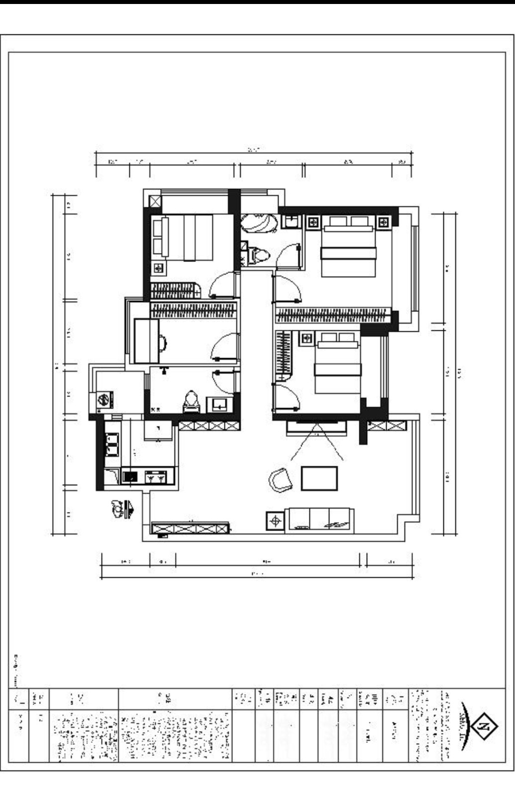
全屋户型图

在设计改造方案时,重点考虑的是户型的整体布局,并注重空间的连接与流通,使生活空间更加舒适自然。
客厅

在奶油风风格设计上,色彩搭配是十分关键的,在此案例中,主体色调以暖色,辅以白色、黑色点缀。在客厅中,墙面和地面的颜色采用了暖色系的地板和奶油色系的墙漆进行搭配,配合咖色系的沙发营造出整个空间的温暖舒适感

在奶油风风格设计上,色彩搭配是十分关键的,在此案例中,主体色调以暖色,辅以白色、黑色点缀。在客厅中,墙面和地面的颜色采用了暖色系的地板和奶油色系的墙漆进行搭配,配合咖色系的沙发营造出整个空间的温暖舒适感

在奶油风风格设计上,色彩搭配是十分关键的,在此案例中,主体色调以暖色,辅以白色、黑色点缀。在客厅中,墙面和地面的颜色采用了暖色系的地板和奶油色系的墙漆进行搭配,配合咖色系的沙发营造出整个空间的温暖舒适感

在奶油风风格设计上,色彩搭配是十分关键的,在此案例中,主体色调以暖色,辅以白色、黑色点缀。在客厅中,墙面和地面的颜色采用了暖色系的地板和奶油色系的墙漆进行搭配,配合咖色系的沙发营造出整个空间的温暖舒适感
卧室

床头墙其起到的是点睛之笔的作用,给予空间更加丰富的情感体验灯具的柔和光线等,都为房间添加了更加温馨的氛围。
卫生间

总的来说,这个奶油风案例摆脱了枯燥的现简约,突显了简单、温馨、舒适的气息让人感到无比舒适。

总的来说,这个奶油风案例摆脱了枯燥的现简约,突显了简单、温馨、舒适的气息让人感到无比舒适。
推荐商品
-
- 预约半包式装修三室两厅,定金2000抵20000家电抵扣券
- ¥2000.00
-
- 全包装修两房奶油风,定金199抵1000施工费
- ¥199.00
-
- 全包装修北欧风两房,定金99抵1000地板抵扣券
- ¥99.00




商品评价
100%好评
共有0人参与评分评价商品